您当前的位置:网站首页 > 公司新闻 > 媒体报道

联系我们

中茂建筑规划设计有限公司上海分公司

手机: 18721989668

电话: 18721989668

地址: 上海市杨浦区绿地汇创国际广场(华东总部)
郑州市二七区大学南路绿地滨湖(华中总部)

邮箱: chinazdi@126.com

媒体报道您现在所在的位置 : 网站首页 > 公司新闻 > 媒体报道
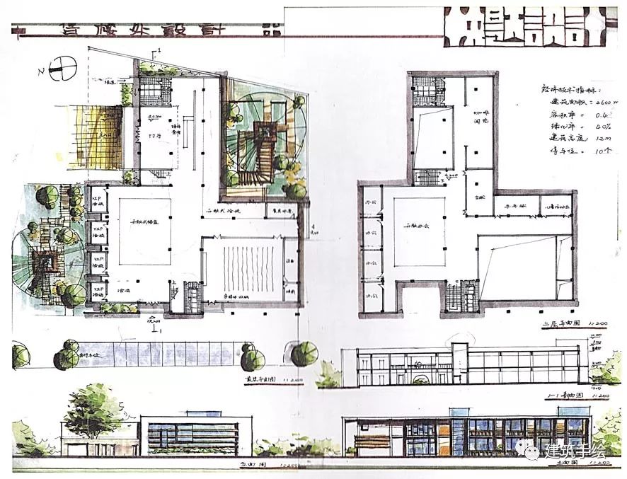
建筑快题设计优秀案例
发布时间:2019-12-03 15:55:43| 浏览次数:

建筑快题设计优秀案例

快题设计是对建筑方案设计的高度概括和提炼,这需要具备对建筑设计本身较强的把握能力,通过对建筑快题学习方法、规范原理的总结;通过大量的实例分析,找到作为快题设计可表述的内在规律。本资料仅仅是建筑快题设计的一种示例,通过大量研读提高规律性认识,运用到自己的设计实践中去。

来源:建筑设计之家


企业概况 公司新闻 案例展示 区域公司 产业投资 人才招聘 联系我们